The fresco

The fresco in Santa Caterina Venetian painter of the first half of the 17th century, Annunciation and Last Supper, Padova, Santa Caterina (Arcadia Ricerche, 2009)

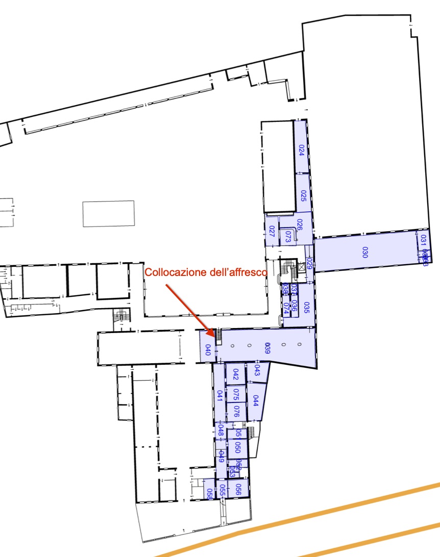
The Management's office and meeting room (n. 040) of the Library of Statistical Sciences preserves a piece of mural painting made with the fresco technique that, to date, is the only surviving artistic testimony of the former monastery of S. Caterina.

The painting is located on the southern wall of the room, where it occupies the upper portion in the form of a lowered arched lunette, with a total size of 7.17x1.80 m.

After being concealed under a layer of plaster for many years, the fresco has become visible and readable again after a restoration carried out in 2009. The operation was made possible thanks to the interest and collaboration of the University of Padova (Prof. Giorgio Celant, Director of the Library, Dr. Irene Favaretto and Elisabetta Saccomani, curators of the artistic heritage of the University and representatives of the Rector in relations with the Superintendence) with the then Superintendence for Historical-Artistic and Ethno-anthropological Heritage for the provinces of Venice, Belluno, Padova and Treviso (Dr. Anna Maria Spiazzi and Monica Pregnolato) and the contribution of the Fondazione Cassa di Risparmio of Padova and Rovigo. The intervention has allowed not only the recovery of the full usability of the subject and the work in its entirety, but also the knowledge of technical information valuable in understanding its creation and ensuring its future preservation.

Planimetry of the Santa Caterina complex, ground floor Planimetry of the Santa Caterina complex, ground floor